Bedrooms: 3
Bathrooms: 1
Square Feet: 700 sqft
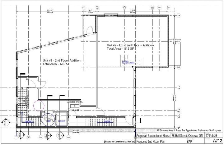
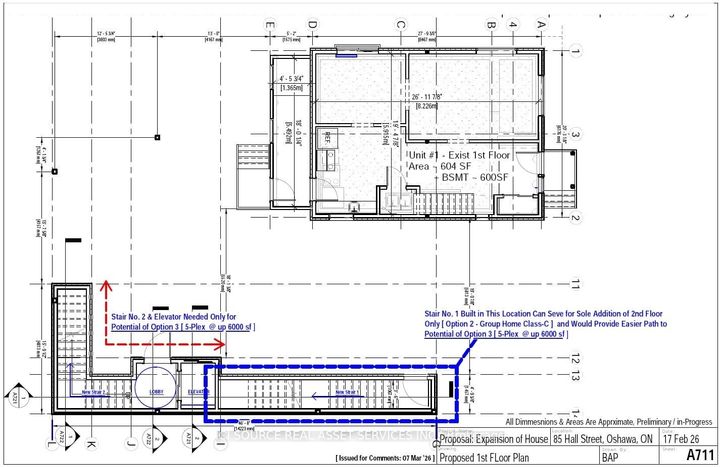
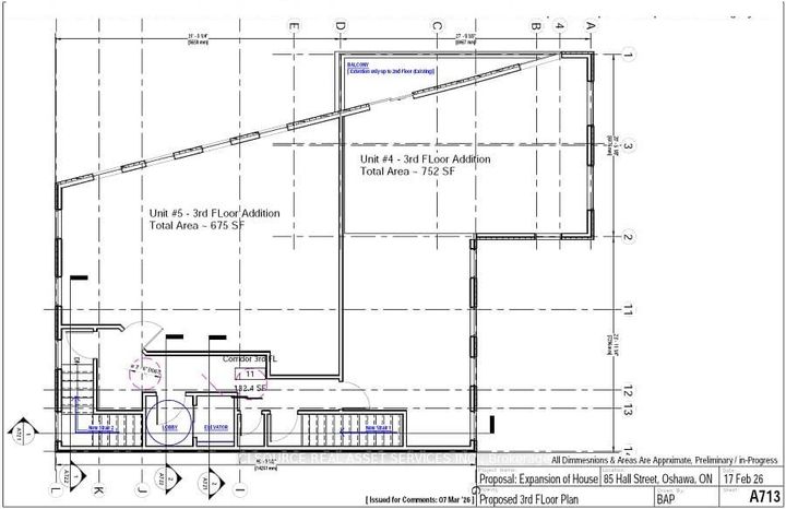
Attention Builders & Investors: For Sale Shovel-Ready House Renovation Project on Ravine Lot in Oshawa - Approx. 800m away from Newly proposed Go-Station. Property is Completely along Green Space - see Survey, LRO plan, and images. The Place is Green Space. Existing HOUSE was built of old solid wood and all finishes have been already Stripped Outside & Gutted Inside - READY for Renovation, which includes Addition of FULL 2nd Storey. NEW SURVEY. ACTIVE BUILDING PERMIT IN HAND: 3 BEDROOMS Upstairs. Kitchen Living on 1st Floor. GFA Approx. 1360 Square Feet. Basement. Building Permit in Hand for 3 Bedroom in full height 2nd Story. Note, the Listing Price incudes the House As Is now, along with Current Building Permit [ for 1360 sf one family house ]. Buyer to do own due diligence and use their own discretion in assessment of Cost of Construction for the Approved (1) Dwelling Unit shown on Building Permit Drawings. The price listed here includes the House "AS-IS" now and Building Permit drawings in-hand - subject to coordination of transfer of permits as per procedures by city and conservation authority. *For Additional Property Details Click The Brochure Icon Below*
Listed by ICI SOURCE REAL ASSET SERVICES INC..
We speak English, Mandarin, Cantonese...